В продаже прекрасный дом в живописном коттеджном городке (№ 22-403-822)
Цена: 145 000 $

Адрес: Центральная ул., Одесса, Одесская, Киевский, ЖМ Дайберг
Характеристики
| Цена: | 145 000 $ |
|---|---|
| № объекта: | 22-403-822 |
| Тип: | дом |
| Этажей: | 1 |
| Спален: | 3 |
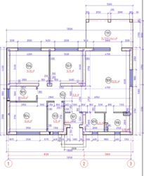
| Площадь дома: | 100/40/31 м2 |
| Участок: | 4,3 сот |
| материал стен: | |
| год постройки: | |
| кол-во с/узлов: | 2 |
| Дополнительно: | коттеджный городок |
Описание
В продаже прекрасный дом, который находится в живописном коттеджном городке, окруженном зеленью и тишиной, что создаёт идеальные условия для комфортной жизни.
Просторная планировка включает три светлые спальни, уютную гостиную и кухню, где легко разместится вся семья.
На участке в 4,3 сотки вы можете воплотить свои мечты: организовать сад, зону для барбекю или детскую площадку.
• Высота потолков : 3,4м
• Санузлы : 2
• Терраса 14,73*0,3
• Кухня-гостиная 30,55м с выходом на террасу
При сдаче дома будут подведены все коммуникации, установлены ворота а также газон во дворе +туи+тротуарная плитка
Технология строительства
Материал сооружения: газоблок 40
Фундамент: блочный
Крыша : Натуральная черепица в цвете «Антрацит»
Утепление: базальтовая вата
Отопление : газ
Коммуникации: городская канализация, свет, газ, вода артезианская
Полный пакет документов
Цена : 145000$ без комиссии
Рассрочка без удорожания на 2 года
Первый взнос от 30%
Не упустите возможность стать счастливым обладателем дома в одном из самых привлекательных районов Одессы!
Звоните прямо сейчас для организации просмотра и получения дополнительной информации.
Ваш новый дом ждет вас!

















