Предлагаются к продаже апартаменты (№ 212-912-781)
Цена: 134 000 $

Мореходный пер., Одесса, Одесская, Приморский, Аркадия
Характеристики
| Цена: | 134 000 $ |
|---|---|
| № объекта: | 212-912-781 |
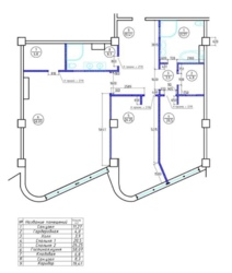
| Комнат: | 3 |
| Этаж: | 6 / 20 лифт |
| Площадь: | 160 / 46 / 58 м2 |
| Санузел: | 2 |
| вид : | на море |
| состояние : | от строителей |
| терраса: | - |
| Пентхаус: | - |
Описание
Предлагаются к продаже апартаменты 160 метров в статусном доме первая линия от МОРЯ! Морская Симфония!
Апартаменты на 6 этаже, планируются в 2-3 отдельные спальни и кухню-гостиную.
Состояние от строителей, качественные окна, входные двери, стяжка пола. Заведены все коммуникации. С каждого окна вид на МОРЕ!
Дом сдан и заселен!
Вид на МОРЕ в сторону Яхт-Клуба.
















