Продаётся просторная трёхкомнатная квартира (№ 212-942-114)
Цена: 230 000 $

Характеристики
| Цена: | 230 000 $ |
|---|---|
| № объекта: | 212-942-114 |
| Комнат: | 3 |
| Этаж: | 4 / 18 лифт |
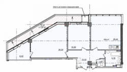
| Площадь: | 110 / 65 / 30 м2 |
| Санузел: | 1 совмещенный |
| Балкон: | лоджия |
| состояние : | ремонт |
| терраса: | - |
| Пентхаус: | - |
Адрес: Одесская, Одесса, Приморский, Французский бульвар, Французский б-р, 85/5
Продаётся просторная трёхкомнатная квартира в самом престижном районе Одессы - Приморском, на Французском бульваре.
Расположение квартиры идеально для комфортного проживания - рядом парки, трасса здоровья, магазины, рестораны и кафе.
Квартира находится на 4 этаже 18-ти этажного дома.
Общая площадь квартиры 110 кв.м, из них 65 кв.м - жилая площадь и 30 кв.м - площадь кухни.
В квартире 3 просторные комнаты, что позволит разместить всю семью с комфортом.
Кухня оборудована всей необходимой бытовой техникой.
Из квартиры открывается прекрасный вид на парк и море.
Лоджия, по периметру всей квартиры, позволяет насладиться свежим воздухом и красивыми видами.
В эту цену включены все мебель и бытовая техника.
Не упустите уникальную возможность стать обладателем такой замечательной квартиры в центре Одессы!
Звоните прямо сейчас для записи на просмотр.























